En modern A-formad stuga i skogsområde med stor glasvägg och trädäck.

Skapa fler och nöjdare gäster med Tältstugan

Det här är stugan som får din camping, stugby eller fritidsanläggning att sticka ut. Du lockar fler och nöjdare gäster samt ger tidningar och influencers skäl att skriva om dig. Inspirationen kommer från den klassiska takformen A-frame, som lockar hundratusentals följare i sociala medier världen över.

Stugan är anpassad för året-runt-bruk. Den passar lika bra i kust och fjäll som skog, sjönära lägen och öppna ytor. Öka dina intäkter genom att förlänga säsongen och hitta nya målgrupper, till exempel människor på tjänsteresa som tröttnat på hotell.

Som tält, fast bekvämt

Mysigt och spännande, men utan att behöva göra avkall på komfort, värme och regnskydd.

Välkommen in

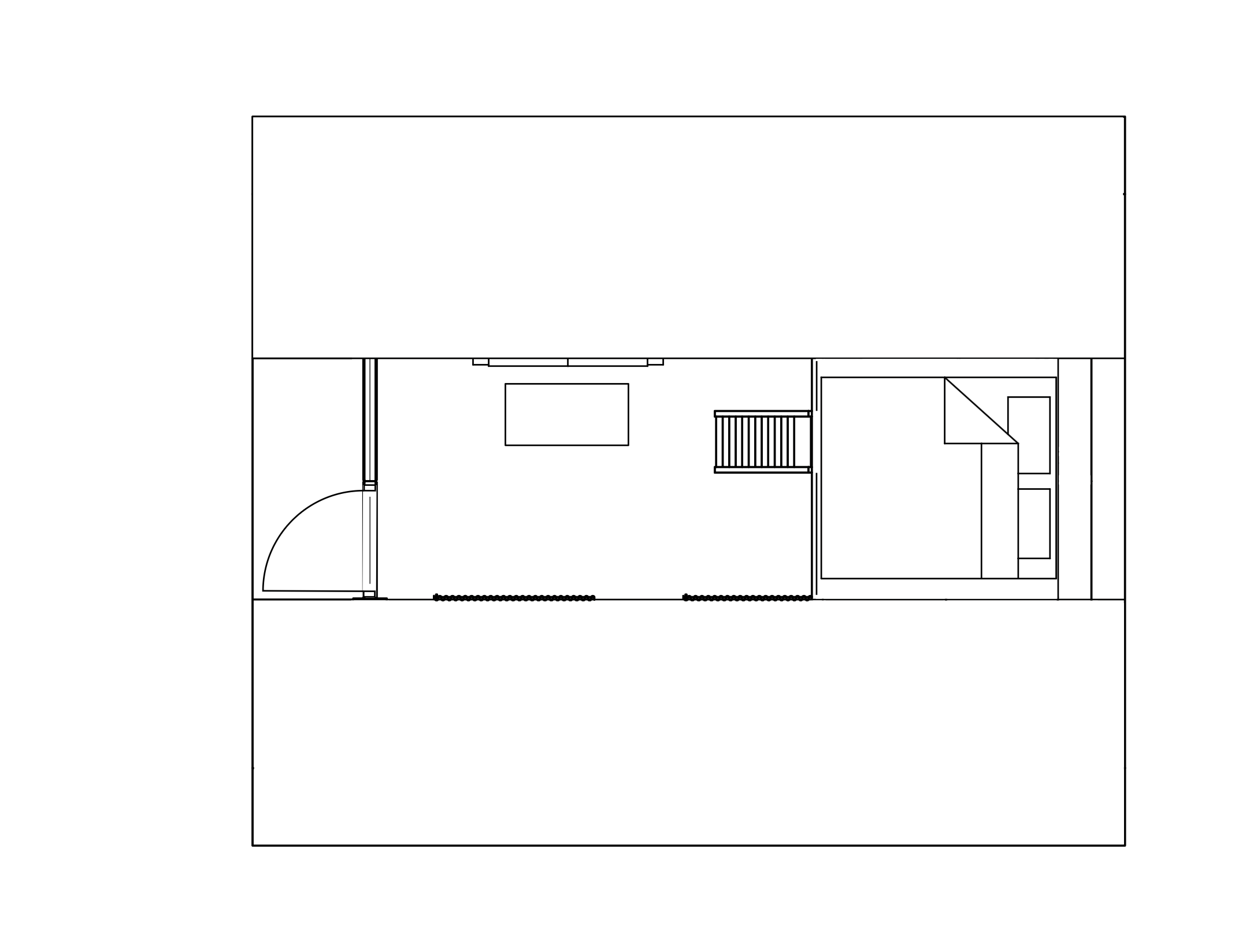
Invändigt möts man av ljus, rymd och en väl genomtänkt planlösning. Stugan har två separata sovplatser och två sovplatser i bäddsoffa. Det går också att komplettera med två madrasser på vinden som nås via en stege. 

Skiss av ett enkelt A-format trähus under konstruktion, utan ytterpanel, med synliga konstruktionselement och en trappstolpe i mitten.
En person tittar ut genom ett stort fönster mot ett bergslandskap med sjö och träd, sittande på en mörk soffa i ett modernt, träinrett rum.

Fasad, plan och sektion

De här bilderna ger dig en uppfattning av hur stugan ser ut och ytorna är disponerade. Hör av dig till oss om du vill se stugan i just din miljö. Vi gör gärna ett enkelt bildmontage.

Skiss av ett triangelformat fönster med insättningar i rutor.

Fasad mot framsidan

Rälsad metallgaller, rektangulärt mönster, svart och vitt färgschema.

Vänster takhalva

En svartvit tecknad triangel med flerlagrade linjer som bildar en ram.

Fasad mot baksidan

En rektangulär metallgaller med horisontella och vertikala stavar.

Höger takhalva

En ritning av en A-formad triangel med ett loft, en stege och ett litet rum med dörrar i mitten.

Sektion från framsidan

Ritad genomgång av ett triangelformat hus med ett badrum, ett fönster och en övre loftdel.

Sektion från baksidan

Liten lägenhetsplan med ett vardagsrum, kök, badrum och sovrum, sett uppifrån.

Planritning entrévåning

Ritning av ett rum med en ingång, ett fönster, en säng och ett skåp.

Planritning loftvåning

Inspirationsbilder

En semesterby med små trähus vid en sjö, omgivna av tallträd, där familjer och vänner njuter av utomhusaktiviteter som grilla, leka och koppla av.
Tre små A-Frame stugor i en skog, omgiven av blommor och träd, med människor som njuter av en kväll runt en brasa och en familj som sitter och pratar på ängen.
Flera modernistiska små hus med triangulära tak i ett berglandskap med kalfjäll och moln på himlen, två personer vandrar längs en stig.
Fem A-frame stugor vid en sjö, med människor som badar och solar på stranden, omgivna av tallskog.
Snötäckta stugor med ljus inomhus i en bergsregion på kvällen, med snöklädda träd, berg i bakgrunden och människor som promenerar.
Fritidsområden vid en frusen sjö, med snötäckta stugor i trä och barn som leker i snön, omgiven av tallar och en klar vinterhimmel.
En modern triangular stuga med ett svart tak och stora glasdörrar i ett skogsområde.

Utfällbart trädäck

Trädäcket utanför stugan bildar en trevlig utemiljö som följer stugans form. När stugan inte ska användas på ett tag kan du fälla upp trädäcket och låsa stugan med hänglås. Ett enkelt sätt att skydda sig mot inbrott, eftersom det inte finns några andra vägar in i stugan än från glaspartiet på framsidan.  

Så här går det till

1: Planering

Vi börjar med att gå igenom hur mycket värde tältstugor kan skapa i din verksamhet. Räknar på möjliga intäkter och förväntad återbetalningstid. Undersöker vilka regler som eventuellt styr vad och hur du får bygga på din mark. När det är klart skissar vi på tänkbar placering av stugorna och tar fram en miljöbild för just din anläggning.

2: Bygglov

Du söker bygglov hos din kommun. Använda dina upparbetade kontakter för bygglov, eller ta hjälp av de företag vi har i vårt nätverk som tar fram bygglovshandlingar. Bygglovet godkänt? Fint, då tar vi nästa steg.

3: Beställning av stugor

Redan i steg 1 har du fått en tydlig bild av priser och leveranstid. Kanske har du också varit i kontakt med din bank för att kunna finansiera projektet. Vi hjälper dig att lägga den formella beställningen hos Vida Building. Det ger dig ett stort och stabilt företag som kontraktspart för Tältstugan vad gäller produktion, leverans och garantier.

4: Förberedelser på plats

Vida Building ger dig en leveranstid för stugorna. Det du behöver göra nu är att upphandla entreprenörer för mark, bygg, el och VVS. Vida Building tillhandahåller det ritningsunderlag som krävs inför leverans.

5: Färdiga stugor

Dina entreprenörer färdigställer stugorna. Därefter följer kontroll, slutbesiktning och kanske någon justering. Vi på Vilarki hjälper dig att hitta rätt budskap och bilder till din marknadsföring. Sedan är stugorna redo att hyras ut!

Det här ingår i paketet

Tältstugan produceras och levereras av Vida Building. Du har två val:

 

1: Vida Building levererar stugpaket med grundmålade eller omålade stugor

2: Vida Building levererar och monterar stugpaket med grundmålade eller omålade stugor

Färger

Modell av ett A-format hus med svart tak, träfasad och ett trädäck framför.

Röd (färgkod XXXXXX)

Modell av ett A-format hus med svart tak och träfasad, samt ett litet trädäck framför.

Svart (färgkod XXXXXX)

Modell av ett A-formigt hus med svart tak, stora glasfönster och en liten trädgårdsdäck.

Grön (färgkod XXXXXX)

Modell av ett A-format trähus med svart tak, glasdörr och liten uteplats.

Grå (färgkod XXXXXX)

Stomme

U-värde golv och väggar: XXX

Papp med trekantlist

Råspont XX mm

Isolering XX mm

Plastfilm

Isolering XX mm

Tak

Råspont XX mm

Isolering XX mm

Plastfilm

Isolering XX mm

Råspont XX mm

Golv

Tryckimpregnerad trätrall XX mm

Låsanordning XX

Utfällbart trädäck

Innertak

Träpanel XX mm

Väggfärg – XX

Gips XX mm

Träreglel XX x XX mm

Gips XX mm

Innervägg

Vinylgolv parkettimitation XX mm

Wc/bad – se nedan

Innergolv

Fönster

Treglasfönster XXX

U-värde: XX

Ytterdörr XXX

Innerdörr wc/dusch XXX

Dörrar

Stomme och hyllor från XX i färg XX

Spisplatta XX

Spisfläkt XX

Diskho XX

Blandare XX

Kylskåp med frysfack XX

Sopsortering XX

Kök

Handfat XX

Spegel och belysning XX

Wc-stol XX

Dusch XX

Våtrumsvägg XX

Våtrumsgolv XX

Wc/dusch

Stege till vind från XX

Färg på stege XX

Draperier för sovalkover XX

Övrigt

Vill du veta mer?

Tveka inte att höra av dig i så fall. Ett digitalt möte på en timme räcker för att du ska kunna bilda dig en uppfattning.

Om företaget

Vilarki drivs av Fredrik Hansson, byggnadsingenjör och civilingenjör inom byggteknik med genuint intresse för husdesign och lång erfarenhet av marknadsföring i roller som copywriter, varumärkesstrategi, byråpartner och kreativ ledare. Namnet Vilarki är en sammansättning av orden ”villa” och ”arkitektur”.